
Informations
Quartier : Pontaillac
Adresse : 23, Avenue Clémence Isaure
Date de projet : 1950
Date de livraison : 1953
Architecte : Louis SIMON
Maître d'ouvrage : Jean DELMAS
Maître d'œuvre : Louis SIMON
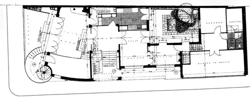
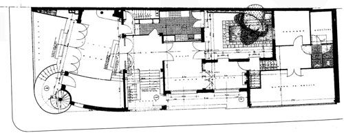
Programme : séjour + salle à manger + 5 chambres + studio + bureau de dessin
Protection / label? : ZPPAUP
Étoiles? : ***
Localisation
Protections et labels
- Classé MH : Classé monument historique ; statut juridique attribué à un monument présentant un intérêt patrimonial à un niveau national.
- Inscrit MH : Inscrit monument historique ; statut juridique attribué à un monument présentant un intérêt à l'échelle régionale.
- Label XXe : Label XXe siècle ; label destiné à faire connaître les productions remarquables de ce siècle en matière d'architecture et d'urbanisme.
- ZPPAUP : Zone de Protection du Patrimoine Architectural, Urbain et Paysager ; dispositif qui avait pour objet d'assurer la protection du patrimoine paysager et urbain et mettre en valeur des quartiers et sites à protéger pour des motifs d’ordre esthétique ou historique.
En savoir plus

Étoiles
Le nombre d'étoiles reflète la qualité architecturale du bâtiment, évaluée par l'auteur de l'ouvrage.







