
Informations
Quartier : Pontaillac
Adresse : 6 et 8, Allée Marquisette
Date de projet : 1959
Date de livraison : 1963
Architecte : Louis BELASCO
Maître d'ouvrage : Madame VINET
Maître d'œuvre : Louis BELASCO
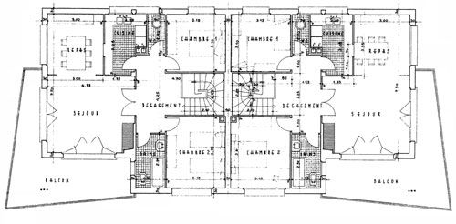
Programme : 2 appartements mitoyens séjour + salle à manger + 2 chambres
Surface : SHOB 2 x 100 m²
Protection / label? : ZPPAUP
Étoile? : *
Localisation
Protections et labels
- Classé MH : Classé monument historique ; statut juridique attribué à un monument présentant un intérêt patrimonial à un niveau national.
- Inscrit MH : Inscrit monument historique ; statut juridique attribué à un monument présentant un intérêt à l'échelle régionale.
- Label XXe : Label XXe siècle ; label destiné à faire connaître les productions remarquables de ce siècle en matière d'architecture et d'urbanisme.
- ZPPAUP : Zone de Protection du Patrimoine Architectural, Urbain et Paysager ; dispositif qui avait pour objet d'assurer la protection du patrimoine paysager et urbain et mettre en valeur des quartiers et sites à protéger pour des motifs d’ordre esthétique ou historique.
En savoir plus

Étoiles
Le nombre d'étoiles reflète la qualité architecturale du bâtiment, évaluée par l'auteur de l'ouvrage.







